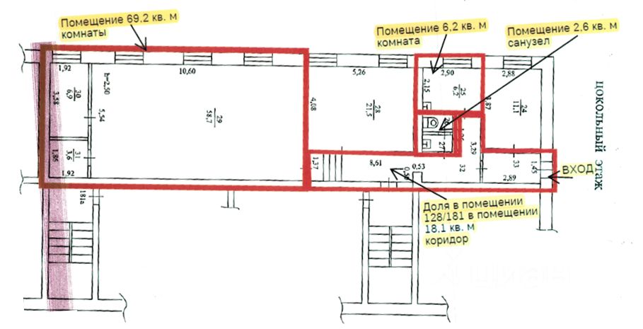
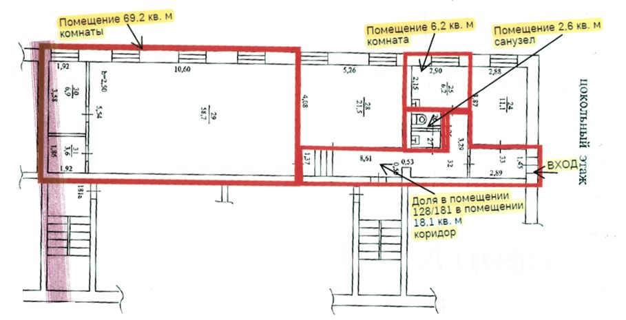
продаются нежилые помещения, общей площадью 90,8 кв. м. на 1 этаже - цоколе многоквартирного жилого дома (кад. 66:56:0207007:1813, 66:56:0207007:1814, 66:56:0207007:1815, 66:56:0207007:1818): 69,2 кв. м - 3 помещения, 6,2 кв.м - 1 помещение, 2.6 кв. м - санузел, доля в МОП (коридор) 12,8 кв. м. Вход в помещения с торца здания (со стороны школы)
Здание 1982 года постройки. Центральные коммуникации: теплоснабжение, электричество, ГВС, ХВС, канализация. Большие окна, высота потолков - 2.8 м., 1 общий вход, свободная планировка.
На первой линии. Предположительное использование: офис, услуги, общепит, торговля. По адресу остаются в собственности помещения ПАО ''Ростелеком'' для размещения и использования оборудования связи.
продаются нежилые помещения, общей площадью 90,8 кв. м. на 1 этаже - цоколе многоквартирного жилого дома (кад. 66:56:0207007:1813, 66:56:0207007:1814, 66:56:0207007:1815, 66:56:0207007:1818): 69,2 кв. м - 3 помещения, 6,2 кв.м - 1 помещение, 2.6 кв. м - санузел, доля в МОП (коридор) 12,8 кв. м. Вход в помещения с торца здания (со стороны школы)
Здание 1982 года постройки. Центральные коммуникации: теплоснабжение, электричество, ГВС, ХВС, канализация. Большие окна, высота потолков - 2.8 м., 1 общий вход, свободная планировка.
На первой линии. Предположительное использование: офис, услуги, общепит, торговля. По адресу остаются в собственности помещения ПАО ''Ростелеком'' для размещения и использования оборудования связи.
Территория вокруг здания не огорожена. На расстоянии 50 м от входа расположена школа. Остановка общественного транспорта в шаговой доступности. В окружении развитая социальная и коммерческая инфраструктура.
Возможно размещение рекламной конструкции на фасаде.
Продажа от собственника — ПАО ''Ростелеком''. Цена указана с учетом НДС 22%. Условия продажи уточняйте по телефону. Звоните, ответим на ваши вопросы!